Land For Sale In Lagos Faro Portugal
Description
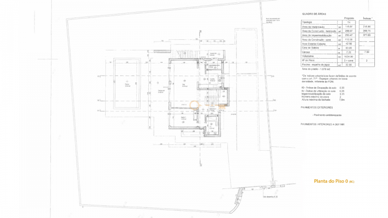
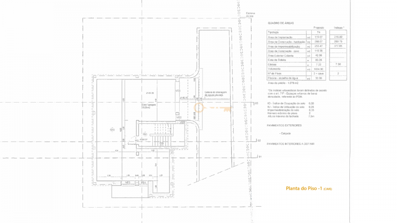
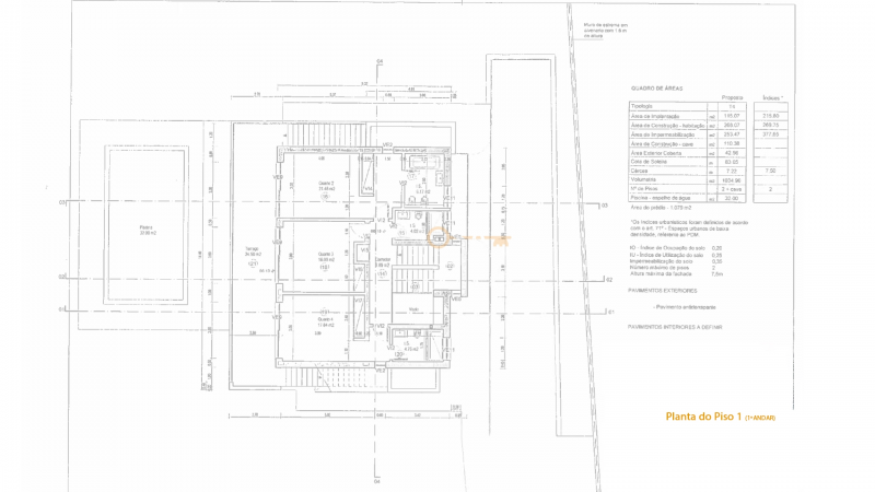
Excellent opportunity to build your dream villa in Praia da Luz. This plot comes with an approved project for a 2-storey + basement villa, with 4 bedrooms, a pool, and a construction area of 431 m². Premium location, just steps from the beach, combining quality of life, tourist rental potential, and an exclusive setting.
Features: Plot of 1,079 m² with a building footprint of 269.75 m². Approved project: 2-storey + basement villa, 4 bedrooms, pool, 431 m² of construction. Stunning sea view, ensuring natural light and a privileged setting. Full freedom to customize and create a unique residence.Surroundings: Premium location, just a few minutes’ walk from Praia da Luz. Close to shops, restaurants, cafés, and essential services. Quiet environment, perfect for a permanent residence or holiday home.Highlights: Excellent investment opportunity for luxury tourism or quality housing. Plot with high appreciation potential. Great opportunity to generate income through short-term rentals. Easy access to Lagos and main regional infrastructures.Don’t miss this opportunity! Contact us and transform this plot into an exclusive sea view villa or a premium tourist investment!
Map
Postal / Zip Code:
Latitude / Longitude: 37.1027881 / -8.67302749999999
Map locations are approximate and show the general area of the property.
-
Company: Mimosaproperties
- View All Properties »
- Speaks: English, Portuguese, German, French, Dutch
- Click to view phone number
Verified Advertiser
- Please mention that you saw this property on MoveAgain.co.uk


