An Opportunity To Purchase One Of Four Brand New Chalets In The Sunny, Quiet Hamlet Of Richebourg.
Description
Le Domaine des Meuniers is a project of four high quality five bedroom chalets to be built in the pretty hamlet of Richebourg, between Abondance and La Chapelle d’Abondance.
The chalet will be delivered key in hand, including fully equipped kitchen, and will of course respect all the latest energy efficiency regulations.
There are four chalets currently available;
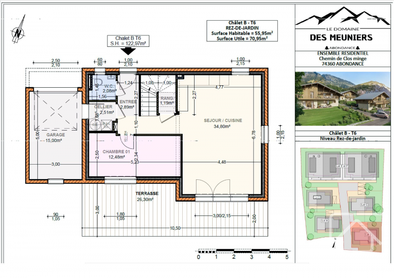
**Chalet A**, 5 bedrooms, 122.97 sq m habitable space (143.61 usable space), balcony of 48.31 sq m, 375 sq m of land, 778.000 € key-in-hand.
**Chalet B**, 5 bedrooms, 122.97 sq m habitable space (143.61 usable space), balcony of 48.31 sq m, 338 sq m of land, 764.000 € key-in-hand.
**Chalet C**, 5 bedrooms, 125.50 sq m habitable space (146.67 usable space), balcony of 48.24 sq m, 400 sq m of land, 748.000 € key-in-hand.
**Chalet D**, 5 bedrooms, 125.50 sq m habitable space (146.67 usable space), balcony of 48.24 sq m, 338 sq m of land, 725.000 € key-in-hand.
The chalets are located in Richebourg, close to, but set back from, the main road into La Chapelle d’Abondance. The location is exceptionally sunny and has wonderful views.
Delivery scheduled for the 2nd half of 2027.
Summary
- Property Type: Chalet
- Listing status: Active
- Bedrooms: 5
- Agent Property Ref: meuniers
- Bathrooms: 3
- Build Size: 125.50 Sqm
- Year of build: 2026
- Price: £632,775 / €725,000
Map
Postal / Zip Code: 74360
Latitude / Longitude: 46.291683 / 6.753427
Map locations are approximate and show the general area of the property.
-
Company: Alpine Property SAS
- View All Properties »
- Speaks: English, French
- Click to view phone number
- Click to view phone number
Verified Advertiser
- Please mention that you saw this property on MoveAgain.co.uk


