A 2 Bed Apartment In Shell Condition (79m2), Offering A Blank Canvas For Complete Fit-out.
Description
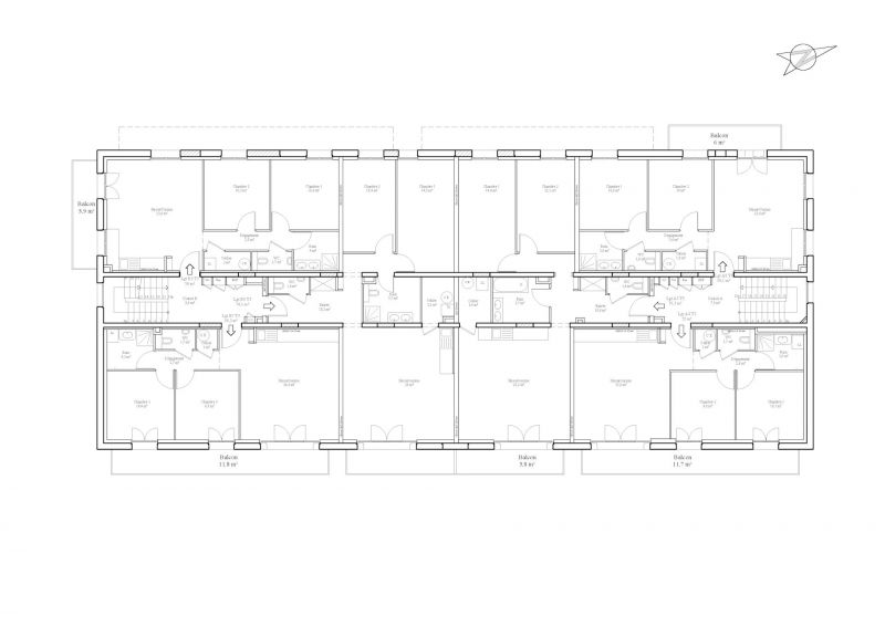
Launch of a new real estate development in Onnion. This residence is a completely renovated building which comprises 22 spacious apartments with a terrace or garden on the ground floor and a balcony on every floor.
Delivery is scheduled for the second quarter of 2026.
At an altitude of 830 metres and 500 metres from the Chennevières chairlift which provides access to the "Les Brasses" ski resort, La Clef des Champs overlooks the small village of Onnion in the hills above Saint-Jeoire. Protected from all traffic, the residence enjoys a comfortable and peaceful living environment, under the watchful gaze of Mont Blanc, 30 minutes from Switzerland and 40 minutes from Lake Geneva.
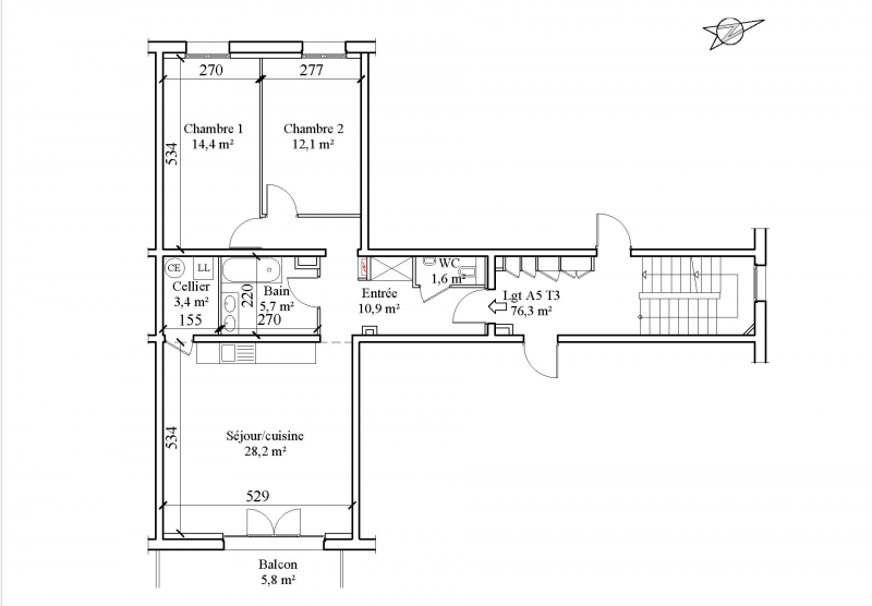
This bright first-floor apartment features an east-facing balcony (5.80 m²) that enjoys morning sun and views of Mont Blanc, as well as west-facing windows that capture the afternoon sun and panoramic views of the Massif des Brasses.
**Finishing options**
The prices shown are for purchasing the base apartment and completing it yourself. A finished option (and price) may be available, please enquire. The finished habitable space should be around 76.30m2.
**Land**
The building is settled within 3800m2 of land, the surrounding countryside is agricultural, no further development can take place.
**Parking**
The residence offers one parking space per apartment included in the price. A second space, subject to availability, can be purchased for 2500€.
**Storage Units**
An external annex comprising 12 storage units of 3 m² each will be built on the north side of the property. These are available for purchase at 5000€.
This property is very well situated; walking distance from the village of Onnion which has a superette, boulangerie, schools and a swimming pool. The town of St Jeoire is 5km away with schools, commerce, restaurants and services. Skiing is easy to access at Les Brasses, a walk or 3min car ride away, also Sommand/Praz de Lys 20mins away. Larger ski areas such as Les Portes du Soleil and Flaine are about 35mins away. Geneva Airport is a 45mins drive and the A40 motorway is only a 15min drive.
**Each unit will be equipped with:**
- A front door.
- An intercom system with a handset for opening the ground floor lobby door.
- New or renovated exterior windows and doors, all equipped with electric roller shutters (except for bathroom windows and second-floor windows and doors).
- The necessary drainage for utilities.
- Water supply with a metre located in the communal hallway.
- Electrical connection with a Linky box and metre.
- Fibre optic connection is planned for the second half of 2026.
- Wooden staircase for the nine duplex apartments on the second floor (the staircase finish will be the responsibility of the owner).
- A draft interior layout plan is provided to each buyer.
Regardless of the chosen option, whether a shell or a finished apartment, this project offers future buyers solutions for adapting the layout or personalising each unit:
- Storage room installation;
- Bathroom renovations;
- Conversion of a two-bedroom apartment into a larger one-bedroom apartment;
- Separate toilet or one integrated into the bathroom;
- Modification of the kitchen, bedrooms, etc.
Summary
- Property Type: Flat / Apartment
- Listing status: Active
- Bedrooms: 2
- Agent Property Ref: champsa5
- Bathrooms: 1
- Build Size: 79 Sqm
- Year of build: 2026
- Price: £167,105 / €191,460
Map
Postal / Zip Code: 74490
Latitude / Longitude: 46.168571 / 6.469944
Map locations are approximate and show the general area of the property.
-
Company: Alpine Property SAS
- View All Properties »
- Speaks: English, French
- Click to view phone number
- Click to view phone number
Verified Advertiser
- Please mention that you saw this property on MoveAgain.co.uk


